Ústecký kraj představil studii středoškolského kampusu
Studii vytvořila Ing. arch. Lenka Rohne z rumburské projekční kanceláře ProProjekt. Předmětem studie je vytvoření středoškolského kampusu s novým administrativním sídlem pro Vyšší odbornou školu, Střední průmyslovou školu a Střední odbornou školu služeb a cestovního ruchu ve Varnsdorfu.
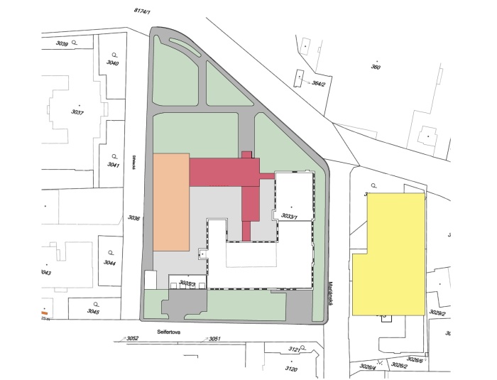
Stávající budova školy v ulici Mariánská se nachází v blízkosti středu města Varnsdorf v docházkové vzdálenosti od náměstí a autobusového nádraží. Řešené území je vymezeno ulicemi Mariánská, Seifertova, Střelecká a Národní.
Studie proveditelnosti nového středoškolského kampusu, zahrnuje nejenom kompletní rekonstrukci vnitřních prostor školy a školní kuchyně s jídelnou v budově Mariánská 1100, ale i výstavbu nového domova mládeže či sportovní haly.
Objekt školy prošel v minulých letech rekonstrukcí fasády a části střechy. V návaznosti na tyto opravy počítá studie se zachováním stávajících opravených objektů a doplněním o stavby nové.
Stávající objekt administrativy a domova mládeže KORD nesplňuje požadavky současné legislativy na tepelné nebo statické vlastnosti objektu a nevyhovuje také hygienickým požadavkům. Původně se jednalo pouze o stavbu dočasnou. Z těchto důvodů bude objekt zdemolován.
V ulici Mariánská se nachází také další objekt školy. Jedná se o dům č. p. 473, kterému se přezdívá „Vláček (mašinka)“. Ten je již několik let vybydlený, nefunkční a chátrá. V této studii se počítá s jeho demolicí.
Novostavba administrativy a centrálního vstupu do budovy školy je navržena v místě původní stavby. Domov mládeže navazuje na tuto část a je umístěn podél ulice Střelecká. Výškově nebude nová stavba převyšovat stavbu původní.
Parametry navrhované stavby
vstupní hala
- recepce
- šatna pro 500 osob
- společenský prostor pro setkávání studentů
- hygienické zázemí
domov mládeže
- ubytovací kapacita cca 136 osob – z toho 40 zletilých a 96 nezletilých
- systém ubytování – buňkový systém (dva pokoje mají společné hygienické zařízení)
- počet ubytovaných na jednom pokoji – max. 3 osoby
- hygienická zařízení jsou součástí ubytovací jednotky, přičemž se zřizuje pro 2 třílůžkové pokoje 1 záchod, 1 sprcha, 2 umyvadla
- v každém patře vyhrazený pokoj pro dohled konajícího pedagoga
- studovny (1,5 m2 /1 žák), obývací pokoje s čajovou kuchyňkou (1,5 m2 /1 ubytovaného)
- sklady čistého a špinavého prádla
- prostory pro sušení oděvů a pro uskladnění a čištění obuvi
- úklidové místnosti
- sklady sezónních potřeb
administrativní sídlo
- 8 kanceláří po 20 m2
- zasedací místnost
- denní místnost s kuchyňským koutem
- archiv, sklad
- hygienické zázemí a úklidová místnost
V rámci studie je také revitalizován park před budovou školy. Nové sadové úpravy jsou navrženy tak, aby se toto místo stalo odpočinkovým prostorem pro setkávání studentů po vyučování. Park se má stát centrem nejenom pro studenty VOŠ, SPŠ a SOŠ a CR, ale také pro studenty sousedního gymnázia.
Dále se studie zabývá výstavbou nové sportovní haly.
Co se týká vybavení a rozměrů sportovní haly. Hrací plocha je plánovaná na rozměry hřiště na házenou včetně přilehlých výběhových ploch, budou k dispozici 4 šatny pro celkem 60 osob. Součástí haly je také tělocvična pro úpolové sporty, posilovna a hlediště pro 200 osob.
Před objektem tělocvičny se počítá s vybudováním nového parkoviště pro návštěvníky haly. Nová sportovní hala má sloužit nejenom pro potřeby školy ale i pro širokou veřejnost.
Parametry navrhované sportovní haly
- rozměr hřiště 20 x 40 m s výběhem min. 1-2 metry za čárami
- výška stropu minimálně 7 m (po spodní hranu vazníků)
- 4 šatny pro 15 osob (celkem 60) včetně hygienického zázemí – 4 sprchy a 2 WC pro každou šatnu
- hlediště/tribuna pro 200 diváků
- posilovna
- tělocvična pro úpolové sporty
- skladovací prostory pro nářadí
- recepce s kanceláří včetně zázemí pro zaměstnance
- technická místnost
- hygienické zázemí pro diváky
Současná situace na leteckém snímku (2020)
Objekt administrativní budovy a domova mládeže KORD je dožilá stavba dočasná. Studie počítá s jeho demolicí.
Nová situace navržená firmou ProProjekt. Červeně označená je vstupní hala s novou administrativní budovou, cihlovou barvou je označen nový domov mládeže a žlutě označená je plánovaná sportovní haly.
Vstupní hala, administrativní budova a budova mládeže ze severního pohledu
Pohled z jihozápadu na domov mládeže a sportovní halu.
Pohled z jihovýchodu na plánovanou sportovní halu s parkovištěm.
Audio záznam z projednávání si můžete poslechnout od času 4:39:45 na kanálu města na Youtube zde https://www.youtube.com/watch?v=X8vDv7qe8XU
JS






